NEWS
//
NEWS //
Project Announcements
PAR-Projects hosts a Hoffner Street block party as fundraising for their Outdoor Event Venue continues.
Groundbreaking at Shine Nuture Center - the expansion of a nature-based Montessori daycare that backs up to Cincinnati’s largest park.
Permits approved for Smales Pretzel Bakery’s latest location in Dayton, Ohio.
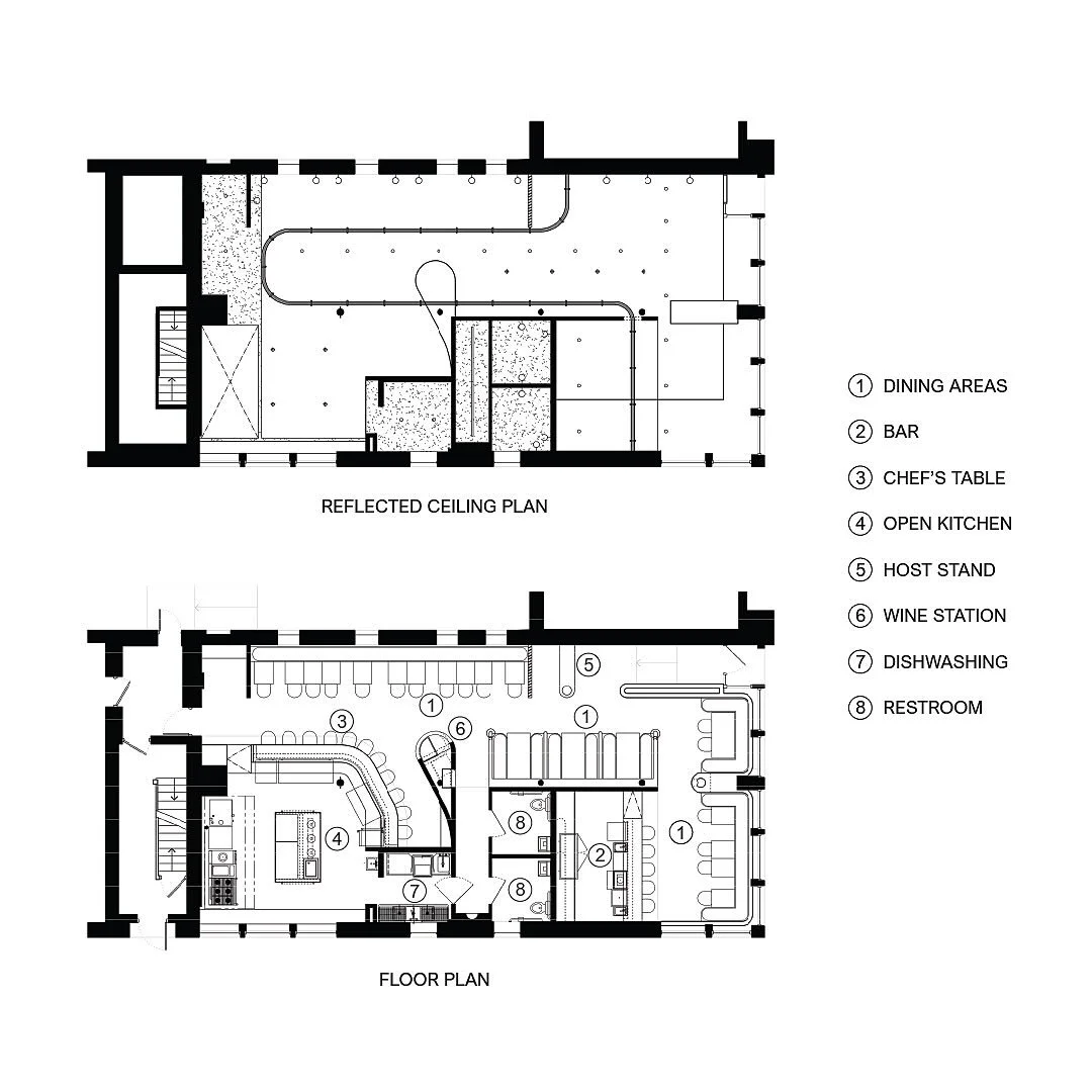
AN Interior covers Wildweed - Read more here.

